- Woonoppervlakte
- Circa 126 m²
- Perceeloppervlakte
- Circa 198 m²
- Bouwjaar
- Gebouwd in 1968
- Aantal kamers
- 4 kamers (3 slaapkamers)
SFEERVOL UITGEBOUWD EN INSTAPKLAAR WONEN OP EEN TOPLOCATIE IN HEERHUGOWAARD
Ben jij op zoek naar een ruime, instapklare en energiezuinige woning met karakter én moderne luxe? Dan is Bilderdijkstraat 61 precies wat je zoekt! Deze prachtig onderhouden tussenwoning met uitbouwen aan voor- en achterzijde, gelegen in een rustige woonstraat midden in het centrum van Heerhugowaard, combineert sfeer, comfort en duurzaamheid op unieke wijze.
De woning heeft een woonoppervlak van 126 m², beschikt over drie ruime slaapkamers, moderne badkamer, een tuin op het zuidwesten, een royale schuur met hobbyruimte, en is voorzien van maar liefst 20 zonnepanelen. De woning is volledig geïsoleerd, uitgerust met vloerverwarming, een houtkachel, moderne keuken, en ademt kwaliteit en warmte.
HOOGTEPUNTEN OP EEN RIJ:
- Ruime woning met uitbouw aan voor- en achterzijde
- Tuin op het zuidwesten met zonnescherm en ruime overkapping
- Woonkamer met vloerverwarming, houtkachel, sierbalken en openslaande tuindeuren
- Luxe badkamer met jacuzzi, breed badmeubel, inloopdouche en vloerverwarming
- Grote schuur met bijkeuken, hobbyruimte en elektrische verwarming
- 20 zonnepanelen (16x 310wp en 4x 220wp), LED-verlichting
- Rustige en centrale ligging in het centrum van Heerhugowaard
Check de EXCLUSIEVE EIGEN SITE VAN DE WONING voor meer informatie over de woning en de omgeving via de site van EV Wonen Makelaardij.
BEZICHTIGING: Vraag snel een bezichtiging aan via Funda of via de website van EV Wonen Makelaardij. We laten deze unieke woning graag aan je zien.
INDELING:
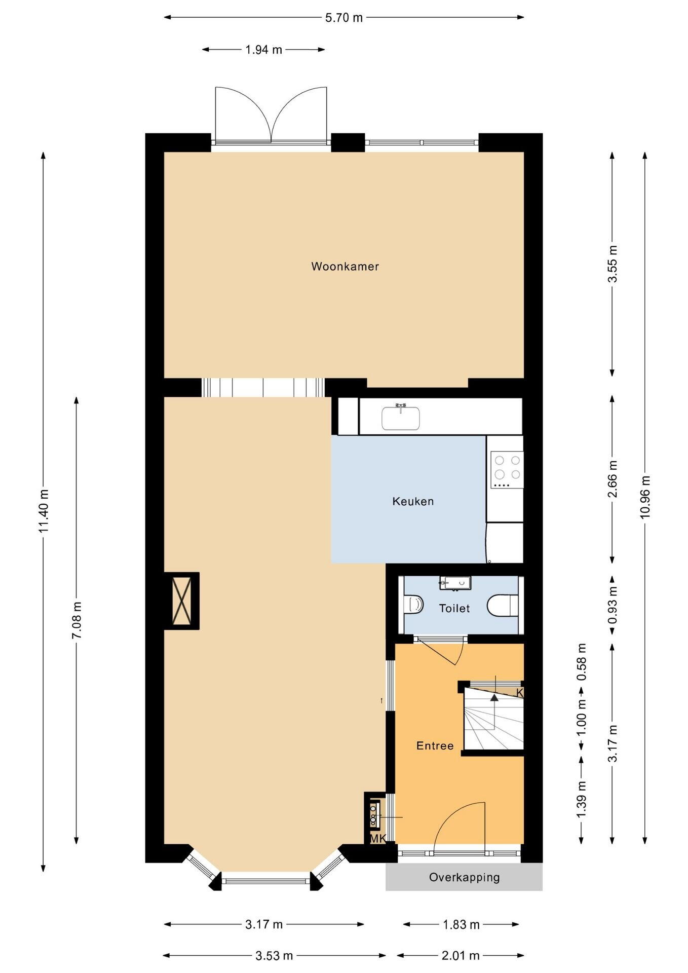
BEGANE GROND
Via de nette voortuin kom je binnen in de ruime hal met modern toilet (voorzien van wandcloset én urinoir). De uitgebouwde woonkamer is een plaatje: een tegelvloer met vloerverwarming, een houtkachel voor de wintermaanden, glad gestuukt plafond met sfeervolle sierbalken en via de openslaande deuren stap je zo de zonovergoten tuin in.
De keuken is gelegen in het midden van de woning en is een hele fijne plek voor iedere kookliefhebber. Deze is voorzien van een 4-zone inductiekookplaat, een combimagnetron, vaatwasser en een koel-vriescombinatie. Een handige draaicarrousel en een apothekerskast zorgen voor extra bergruimte en overzicht. De dubbele RVS wasbak is gecombineerd met een Quooker voor direct kokend water. Het geheel is afgewerkt met een stijlvol natuurstenen werkblad dat de keuken een luxe uitstraling geeft.
1e VERDIEPING
Op de eerste verdieping vind je twee royale slaapkamers, waarvan de slaapkamer aan de achterzijde toegang geeft tot een fijn dakterras – een heerlijke plek om buiten te zitten in alle rust. Beide slaapkamers zijn licht en netjes afgewerkt.
De badkamer is luxe uitgevoerd en compleet ingericht. Hier vind je een jacuzzi, een ruime inloopdouche, een modern wastafelmeubel, een designradiator, een zwevend toilet én vloerverwarming. Dankzij het aanwezige raam is er daglicht én natuurlijke ventilatie – een fijne combinatie van luxe en praktisch comfort.
2e VERDIEPING
De tweede verdieping is bereikbaar via een vaste trap. Hier bevindt zich de derde slaapkamer, uitgerust met een dakkapel die zorgt voor extra licht en ruimte. De kamer is netjes afgewerkt en ideaal als slaap-, werk- of hobbyruimte.
BUITENLEVEN & SCHUUR
De achtertuin van ruim 14 meter diep ligt perfect op de zon (zuidwest) en is een heerlijke plek om te ontspannen of te genieten van een BBQ. Dankzij het grote zonnescherm, de diepe veranda en de privacy is het hier elk seizoen genieten.
Achterin de tuin vind je de vrijstaande stenen schuur (24 m²), verdeeld in een praktische bijkeuken en geïsoleerde hobbyruimte, met verwarming, elektra, wateraansluiting en tegelvloer. Ideaal voor klussen, extra opslag of zelfs werk aan huis.
LOCATIE & VOORZIENINGEN
Bilderdijkstraat 61 ligt in een rustige, kindvriendelijke straat op loopafstand van het stadscentrum. Supermarkten, winkels, scholen, sportfaciliteiten, openbaar vervoer en uitvalswegen richting Alkmaar of Amsterdam liggen allemaal om de hoek. Een centrale ligging in een fijne woonwijk!
TECHNISCHE DETAILS:
Bouwjaar: 1968
Perceeloppervlak: 198 m²
Woonoppervlak: ca. 126 m²
Vrijstaande schuur: ca. 24 m²
Verwarming: Nefit HR CV-ketel (2016), vloerverwarming (BG), houtkachel
INTERESSE?
Instapklaar, duurzaam, centraal en sfeervol – een zeldzame combinatie! Plan snel een bezichtiging via Funda of via onze website. We laten je deze parel graag zien.
Welkom aan de Bilderdijkstraat 61 – jouw nieuwe thuis in het hart van Heerhugowaard!
Overdracht
- Vraagprijs
- € 415.000 k.k.
- Status
- Verkocht
Bouw
- Object type
- Eengezinswoning, tussenwoning
- Soort bouw
- Bestaande bouw
- Bouwjaar
- 1968
- Soort dak
- Zadeldak bedekt met pannen
Oppervlakte en inhoud
- Woonoppervlakte
- 126 m²
- Perceeloppervlakte
- 198 m²
- Inhoud
- 417 m³
- Externe bergruimte
- 24 m²
- Gebouwgeb. buitenruimte
- 11 m²
Indeling
- Aantal kamers
- 4 kamers (3 slaapkamers)
- Aantal badkamers
- 1 badkamer en 1 apart toilet
- Badkamervoorzieningen
- Inloopdouche, jacuzzi, toilet, vloerverwarming, en wastafelmeubel
- Aantal woonlagen
- 3 woonlagen
- Voorzieningen
- Buitenzonwering, dakraam, glasvezelkabel, natuurlijke ventilatie, TV kabel, en zonnepanelen
Energie
- Energielabel
- A
- Isolatie
- Dakisolatie, dubbel glas, muurisolatie, vloerisolatie en volledig geïsoleerd
- Verwarming
- Cv-ketel, houtkachel en gedeeltelijke vloerverwarming
- Warm water
- Cv-ketel
- Cv ketel
- Nefit ( combiketel uit 2016, eigendom)
Buitenruimte
- Ligging
- Aan rustige weg, in centrum en in woonwijk
- Balkon / dakterras
- Dakterras aanwezig
- Tuin
- Achtertuin en voortuin
- Afmetingen achtertuin
- 82 m² (14,13 meter diep en 5,80 meter breed)
- ligging tuin
- Gelegen op het zuidwesten bereikbaar via achterom
Bergruimte
- Schuur / berging
- Vrijstaande stenen berging
- Voorzieningen
- Elektra, verwarming en stromend water
Actueel energieverbruik
Energielabel deze woning
Energielabel A
Publicatie energielabel:
Stroomverbruik per jaar
Bilderdijkstraat 61, Heerhugowaard
Gasverbruik per jaar
Bilderdijkstraat 61, Heerhugowaard
Indicatie hypotheeklasten
Eigen inleg:
Spaargeld / overwaarde
Rente:
Laagste 10-jaars rente
Laagste 10-jaars rente
2,76% - Centraal Beheer Groen... - NHG
2,98% - Centraal Beheer Groen... - 80%
Laagste 20-jaars rente
3,19% - Centraal Beheer Groen... - NHG
3,31% - Centraal Beheer Groen... - 80%
Laagste 30-jaars rente
3,34% - Centraal Beheer Groen... - NHG
3,47% - Centraal Beheer Groen... - 80%
Hypotheek:
Bruto maandlasten: € 0 p/m
Netto maandlasten: € 0 p/m
Hoe berekenen we dit?
Het rentepercentage is gebaseerd op de laagste 10-jaars vaste rente voor één hypotheekdeel. De vermelde rente (2.98% zonder NHG) is gecontroleerd op 01-08-2025. Deze berekening is gebaseerd op een annuïteitenhypotheek die volledig wordt afgelost, waarbij de maandlasten gedurende de gehele looptijd gelijk blijven. De werkelijke rente en netto maandlasten kunnen variëren, afhankelijk van uw persoonlijke situatie en de hypotheekverstrekker. Raadpleeg een financieel adviseur voor een nauwkeurige berekening en advies. Aan deze berekening kunnen geen rechten worden ontleend; het dient enkel als indicatie.
Documentatie
Kadastrale kaart
Leefomgeving
Brochure woning
Plattegronden PDF
WOZ waarderapport
BAG uittreksel
Lijst van zaken
Vragenlijst
Bezoek onze website
Bezichtiging
Bod uitbrengen
Waardebepaling
Zoekopdracht
Alles downloaden
Zonnegrenzen bekijken
Op de kaart
Inwoners in Heerhugowaard
Cijfers voor postcodegebied 1702
- Totaal aantal inwoners
- 59045 inwoners
- Mannen
- 51%
- Vrouwen
- 49%
Inwoners in Heerhugowaard
Cijfers voor postcodegebied 1702
- tot 15 jaar
- 17%
- 15 tot 25 jaar
- 13%
- 25 tot 35 jaar
- 25%
- 45 tot 65 jaar
- 27%
- 65 en ouder
- 18%
Huishoudens in Heerhugowaard
Cijfers voor postcodegebied 1702
- Eenpersoons zonder kinderen
- 32%
- Meerpersoons zonder kinderen
- 34%
- Huishoudens zonder kinderen
- 66%
Huishoudens in Heerhugowaard
Cijfers voor postcodegebied 1702
- Huishoudens met één kind
- 9%
- Huishoudens met meerdere kinderen
- 25%
- Huishoudens met kinderen
- 34%
Woningen in Heerhugowaard
Cijfers voor postcodegebied 1702
- Woningen voor 1945
- 2%
- Woningen tussen 1945 en 1965
- 2%
- Woningen tussen 1965 en 1975
- 68%
- Woningen tussen 1975 en 1985
- 6%
- Woningen tussen 1985 en 1995
- 5%
Woningen in Heerhugowaard
Cijfers voor postcodegebied 1702
- Woningen tussen 1995 en 2005
- 1%
- Woningen tussen 2005 en 2015
- 12%
- Woningen na 2015
- 4%
- Huurwoningen
- 40%
- Koopwoningen
- 60%
Overige in Heerhugowaard
Cijfers voor postcodegebied 1702
- Gemiddelde WOZ waarde
- € 231.000,-
- Personen onder de 65 met uitkering
- 9%
Overige in Heerhugowaard
Cijfers voor postcodegebied 1702
- Adressen per km²
- 1993
- Stedelijkheid (schaal 1 op 5)
- 80%


Wie is EV Wonen Makelaardij?
Het verlaten van je oude woning of het ontdekken van je nieuwe droomhuis is een ongelooflijk opwindend proces voor de meeste van onze klanten. Er zijn zoveel besluiten te nemen en talloze factoren die invloed hebben op het behalen van het best mogelijke resultaat voor jou. Bovendien is de vraag naar woningen sterk gestegen en hebben de prijzen recordhoogtes bereikt.
In deze dynamische en vaak onvoorspelbare markt zijn wij de toonaangevende verkoopmakelaar in de regio, goed geïnformeerd over de lokale huizenmarkt en de verkoopmogelijkheden van jouw woning.
We hebben voor veel klanten uitstekende verkoop- of aankoopresultaten behaald. Wij volgen geen vaste methoden, omdat we geloven dat elke woning en verkoper uniek is. Bij ons kun je rekenen op een persoonlijke benadering. Ons succesgeheim is dat we alledaagse dingen buitengewoon goed uitvoeren.
Een huis met succes verkopen is geen eenvoudige taak. EV Wonen Makelaardij biedt:
– een solide verkoopstrategie;
– een eersteklas presentatie met altijd een toppositie op Funda;
– een gedreven en gecertificeerde Register Makelaar/Taxateur;
– proactief gebruik van sociale media;
– en een flinke portie lokale marktkennis.
Onze aanpak heeft de afgelopen jaren geleid tot een zeer hoge Funda klantbeoordeling van 9,5! Dit betekent dat klanten met een goed verkoopproces uitstekende verkoopresultaten hebben behaald.
We besteden veel aandacht aan jouw persoonlijke situatie en de specifieke kenmerken van jouw woning. Dit, in combinatie met een goede communicatie, garandeert een succesvol verkoop- of aankooptraject. Benieuwd wat we voor jou kunnen doen? We komen graag vrijblijvend langs voor advies op maat.
Naast Heerhugowaard zijn we ook actief als makelaar in Alkmaar, Oterleek, Langedijk, Hensbroek, Obdam en omgeving.
Wij kunnen je op een unieke en persoonlijke manier volledig ontzorgen als verkoopmakelaar of aankoopmakelaar bij de verkoop of aankoop van jouw woning.

Nieuwste reviews
-
Honthorstlaan 402
Snelle en hele prettige communicatie. Het is niet niks om je huis te verkopen, maar alle zorgen werden uit handen genomen door de juiste beg...
-
Graanmolen 26
Edwin is een no-nonsense makelaar die zaken niet mooier maakt dan ze zijn. Hij is goed bereikbaar en zorgt voor follow-ups als dat nodig is....
-
Kievitlaan 34
Sympathiek persoonlijk contact, heldere communicatie en deskundige begeleiding. Een fijne makelaar om de verkoop van je woning aan toe te ve...